New main drain to septic, original pitch was wrong.

ktm-don

New Member
Messages
5
Reaction score
0
Points
1
Location
Michigan
We have a 3 bedroom 2-1/2 bath ranch home, and have been here for 30 yrs. There are two septic systems, one tank is very deep, about 7 feet below grade. The upstairs sink and laundry, downstairs laundry and half bath all drain into the lower tank. Only the two upper baths drain into the shallower tank. The lower tank has a riser from the tank to the cover.

Reading the handwritten inspection docs from 1966, it appears that the lower tank installation was not consistent with the original permit drawings. The installation was red tagged. As a remedy, the second tank was installed with it's own drain field. This system was approved. The notes state that " Laundry wastes only permitted at lower level". I think the previous owner added the downstairs toilet after inspection was completed. The drain field for the second tank crosses the line of the lower main drain.

Fast forward to 2026, we've had problems with water backing up in the basement. A local plumber determined that the lower cast iron main drain was badly deteriorated. We had the excavation done, and the cast iron replaced with PVC from the house to the tank. It appears that the pitch of the original cast iron line was incorrect. Another way of looking at it is that the tank was a few inches too high to properly pitch the drain. The plumbing crew had to chip out the inlet opening to get proper pitch. The plumber suggested that if necessary, the tank outlet could be lowered to compensate for the lower inlet. We're still trying to determine if the inlet will be under water, as there was a second compartment in the lower tank that we've never pumped. That's being done in the next couple of days.

Anyway, is lowering an outlet to compensate for a lowered inlet really a possibility? If we have to modify or replace this lower tank outlet and drain field, I'm concerned that the basement toilet is going to be an issue due to the inspection notes from 1966. Also, it's a major dig just to get to the top of that tank, as it is 7 feet deep.

Thanks for any and all comments. At this point, I have not contacted a septic company to get an opinion.
 

Reach4

Well-Known Member
Messages
42,135
Reaction score
5,195
Points
113
Location
IL
You might consider a sketch to illustrate your situation. I think these two tanks may be in series, but I am not sure. Or maybe you have two independent tanks each servicing different fixtures. Window Paint or pen/pencil and paper would work.

1/8 inch per foot is enough slope for 3 to 6 inch pipe under IPC.

Lowering an inlet would make me worry about the outlet altitude.
 

ktm-don

New Member
Messages
5
Reaction score
0
Points
1
Location
Michigan
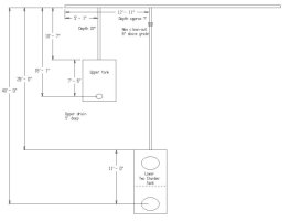
Great idea, I fired up an ancient 2D cadd program to document the tank and lid locations. The tanks are definitely two distinct systems. The first photo shows the inlet to each tank. Ignore the sloping downspout drain against the wall. The 2nd photo shows the lower tank drain line, with the upper tank drain field pipes restored after excavating the lower drain disrupted the original clay tile.
 

Attachments

  • septic schematic.jpg
    septic schematic.jpg
    30.2 KB · Views: 30
  • two tanks reduced.jpg
    two tanks reduced.jpg
    160.2 KB · Views: 28
  • Drain and drain field.jpg
    Drain and drain field.jpg
    145.3 KB · Views: 29

Bannerman

Well-Known Member
Messages
5,489
Reaction score
1,072
Points
113
Location
Ontario, Canada
the tank was a few inches too high to properly pitch the drain.
plumbing crew had to chip out the inlet opening to get proper pitch. The plumber suggested that if necessary, the tank outlet could be lowered to compensate for the lower inlet.
I anticipate it probably would have been much simpler, less risky and less expensive to have bored a new hole through the house foundation wall when the drain pipe was being replaced. By boring a new hole above the original hole and then patching the old hole, that would have permitted correction of the drain pipe pitch to the lower tank, without risking damage to the tank, or leading to concerns with the elevation of tank's outlet being potentially above the tank's inlet connection height.
 

ktm-don

New Member
Messages
5
Reaction score
0
Points
1
Location
Michigan
That would be true, except this drain is under the floor of our finished basement, and continues the full length of our ranch home. The plumber did say he could re-pitch the entire drain, but it would have involved removing interior walls, carpet and tile and sawing up the entire floor. My wife said 'hell no!"
 
Last edited:
Top
Hey, wait a minute.

This is awkward, but...

It looks like you're using an ad blocker. We get it, but (1) terrylove.com can't live without ads, and (2) ad blockers can cause issues with videos and comments. If you'd like to support the site, please allow ads.

If any particular ad is your REASON for blocking ads, please let us know. We might be able to do something about it. Thanks.
I've Disabled AdBlock    No Thanks